


Foyer with convenient coat closet and adjacent half bath
Private mudroom with storage closet
L-shaped kitchen with spacious island and walk-through pantry
Rear dining nook
Rear living room with gas fireplace is open to the nook and kitchen
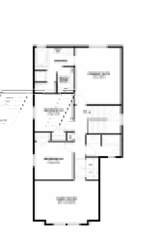
Large second floor front family room
Secondary floor laundry closet
Two secondary bedrooms
3 Piece main bath
Rear owner’s suite with deluxe four piece ensuite and walk-in closet
Optional kitchen layouts
Optional ensuite layouts
Ask us about our Love It or Customize It options for this floorplan
has added the following dependencies:
The following conflicted items have been removed:
Removing removed these required options:
Your selection has updated the following details:
Our single-family front garage Cobblestone Creek houses for sale offer up to 2,575 square feet of living space and various customizable new home features. From extra bathrooms to walk-in closets or custom finishes, the Shane Homes team works closely with you to bring your vision to life, making the homebuilding process smooth, flexible, and tailored to your needs.
Pricing includes average lot pricing, house, GST and all current promotions. Final pricing to be confirmed with our sales team at the time of purchase and sales agreement after an offer is accepted. All plans, options, dimensions, specifications, lots, and drawings are subject to availability and may change without notice. Some features may have limited, late, or no availability. Please check with your Area Sales Manager to confirm availability. The builder reserves the right to make modifications or substitutions should they be necessary. E.&O.E.