


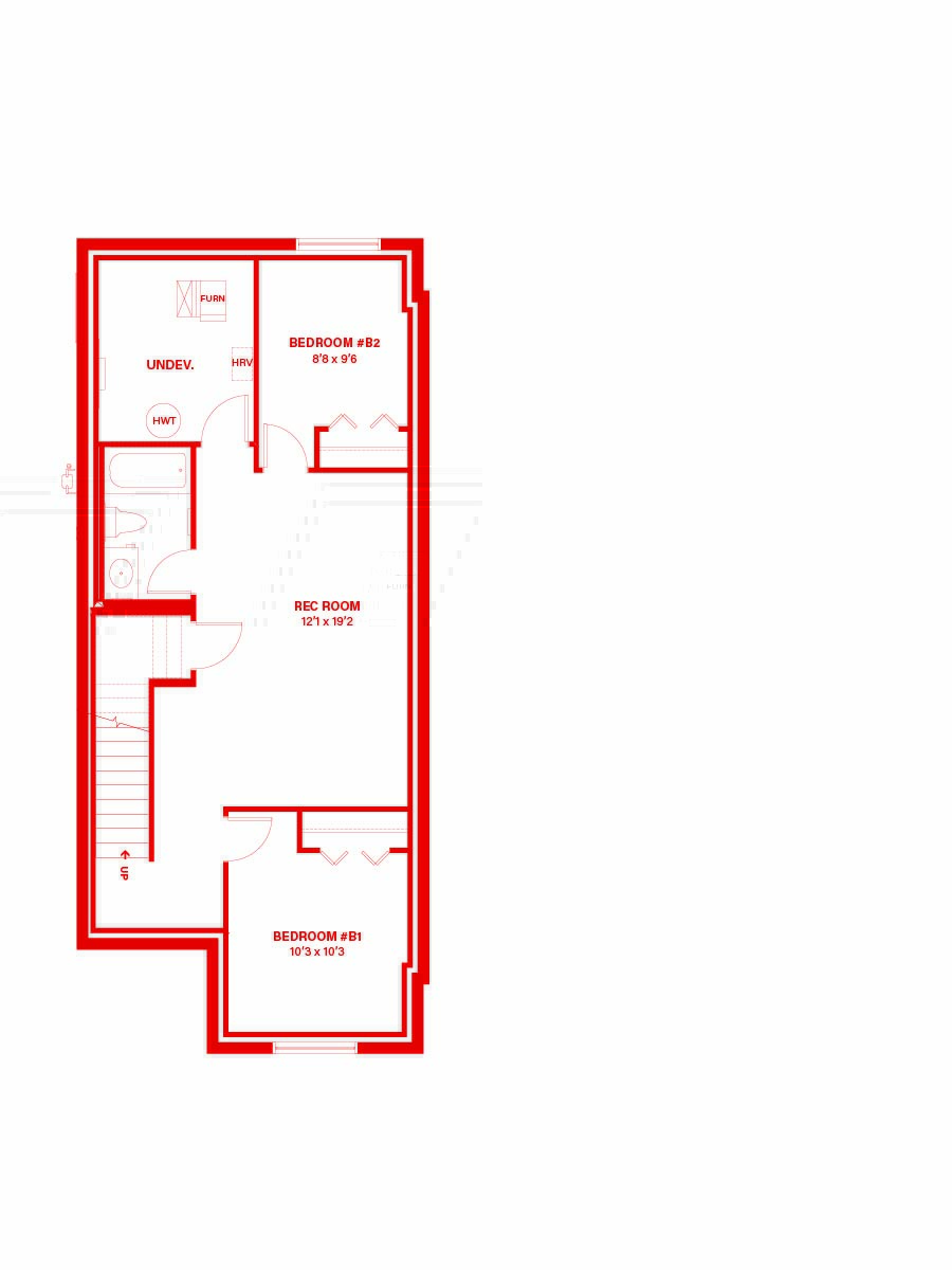
Ask us about our Love It or Customize It options for this floorplan
has added the following dependencies:
The following conflicted items have been removed:
Removing removed these required options:
Your selection has updated the following details:
Shane Homes is excited to announce the return of our duplex homes in the community of Sirocco.
Our previous release in this highly sought-after neighborhood sold out, and we are pleased to once again offer families the opportunity to call Sirocco home. These thoughtfully designed duplexes combine modern layouts, quality craftsmanship, and exceptional value. All in a location that’s close to amenities, schools, and natural green spaces.
Discover why so many families choose Shane Homes in Sirocco. Explore our available duplex models today and find the home that’s right for you.
Pricing includes average lot pricing, house, GST and all current promotions. Final pricing to be confirmed with our sales team at the time of purchase and sales agreement after an offer is accepted. All plans, options, dimensions, specifications, lots, and drawings are subject to availability and may change without notice. Some features may have limited, late, or no availability. Please check with your Area Sales Manager to confirm availability. The builder reserves the right to make modifications or substitutions should they be necessary. E.&O.E.