


Central rear kitchen with spacious island including a walk in pantry
Rear bright dining nook
Rear living room with gas fireplace is open to the nook and the kitchen
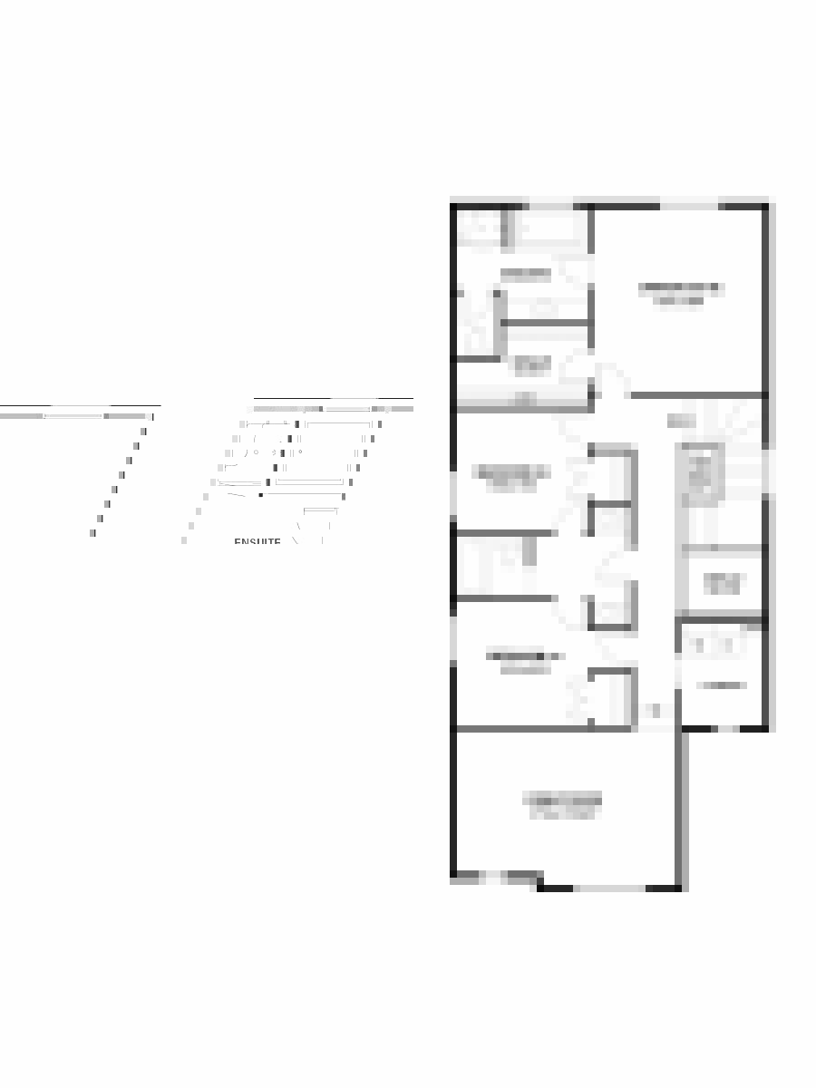
Second floor central family room separates the owner’s suite and secondary bedrooms, providing more privacy
Second floor laundry closet
Three secondary bedrooms each with walk-in closet
Rear owner’s suite with deluxe four piece ensuite and walk-in closet
Ask us about our Love It or Customize It options for this floorplan
has added the following dependencies:
The following conflicted items have been removed:
Removing removed these required options:
Your selection has updated the following details:
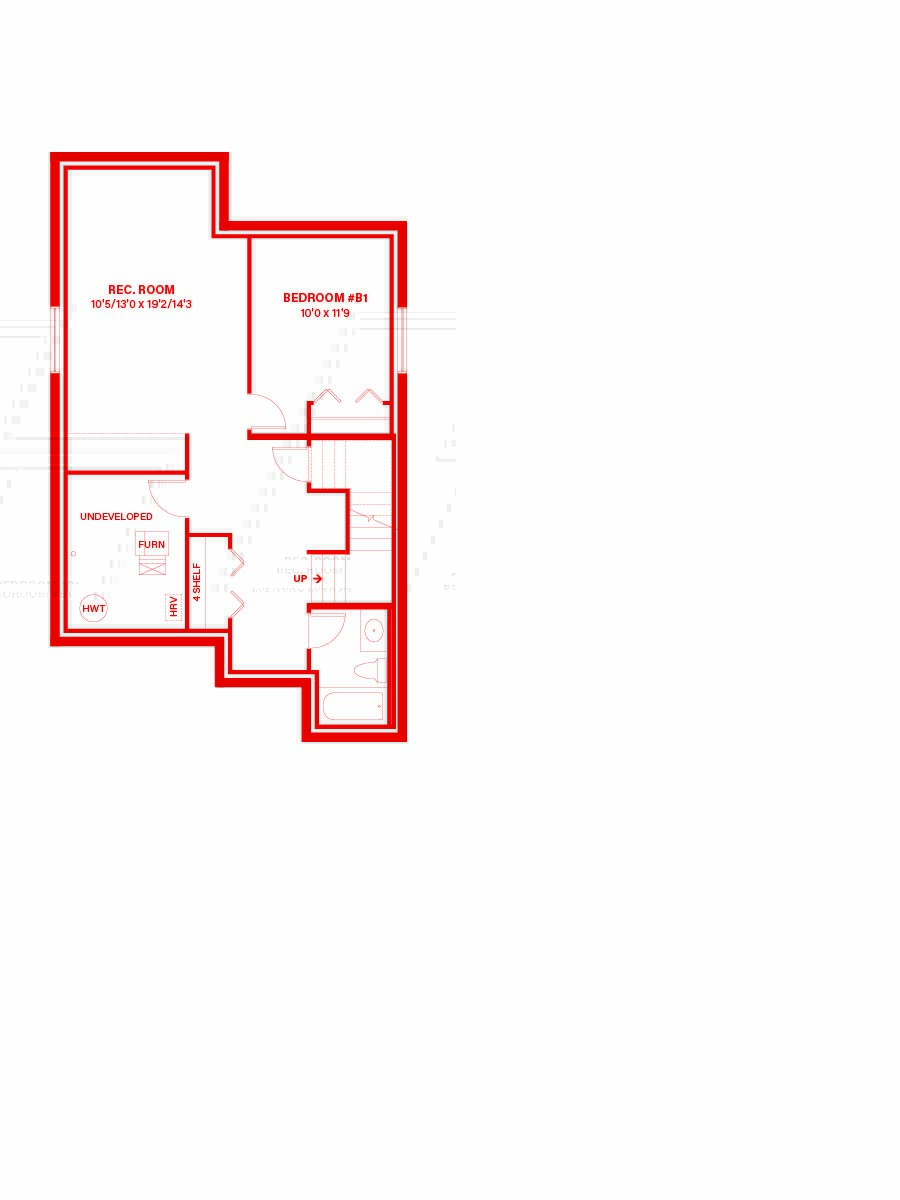
Our new front-drive homes include large living spaces and up to four bedrooms and four bathrooms with double front-attached garages, open-concept designs, and premium finishes. Additionally, we can help you build a developed basement suite that adds versatility and value to your property.
Pricing includes average lot pricing, house, GST and all current promotions. Final pricing to be confirmed with our sales team at the time of purchase and sales agreement after an offer is accepted. All plans, options, dimensions, specifications, lots, and drawings are subject to availability and may change without notice. Some features may have limited, late, or no availability. Please check with your Area Sales Manager to confirm availability. The builder reserves the right to make modifications or substitutions should they be necessary. E.&O.E.